Navigation überspringen
Sitemap anzeigen
05251 14 76 75 0
info
∂
projekt55.de
Unser Instagram-Profil
Menü
Startseite
Unternehmen
Über uns
Team
Jobs
Leistungen
Architektur
Ingenieurwesen
Neubau
Umbau
Sanierung
Planung & Projektierung
Projekte
Kontakt
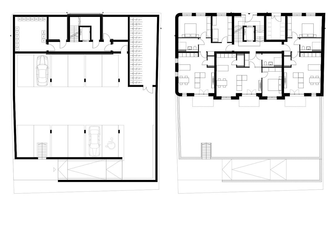
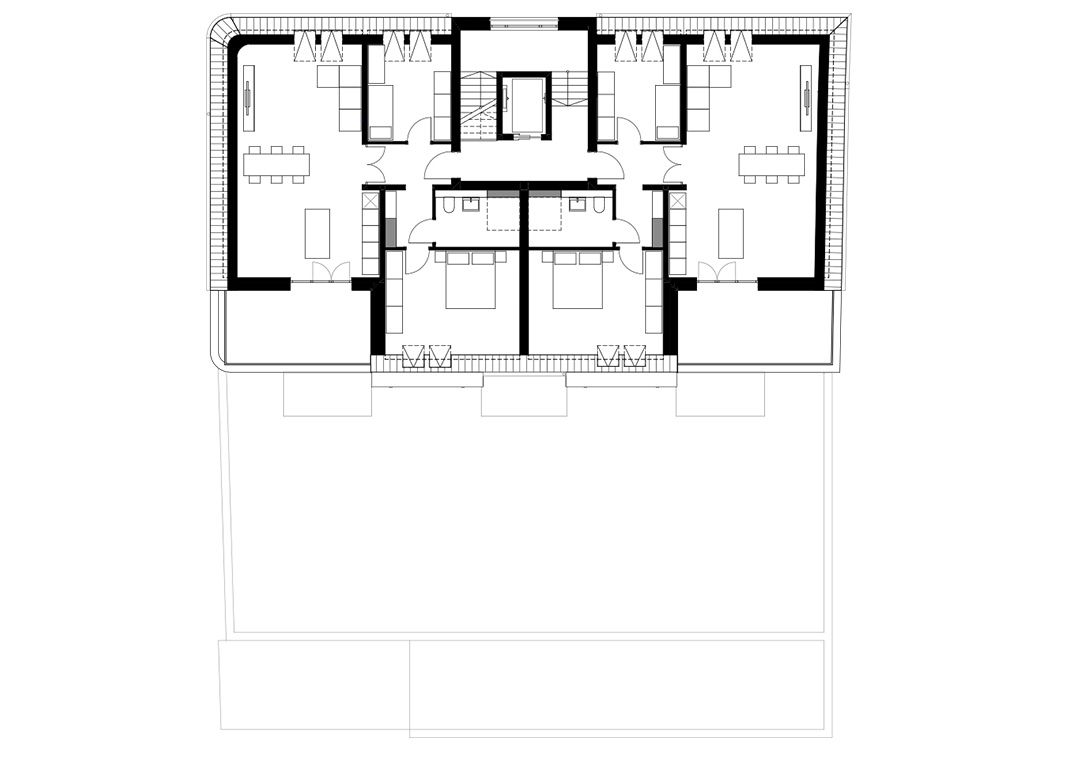
Mehrfamilienhaus,
Bad Lippspringe
Mehrfamilienhaus
Acht Wohneinheiten & Tiefgarage
610 qm
Leistungsphase 1-9
33175 Bad Lippspringe
Weitere Bilder
Zum Seitenanfang
JavaScript-Warnung: JavaScript ist nicht aktiviert!
Achtung:
JavaScript ist nicht aktiviert! Bitte aktivieren Sie
JavaScript
um den vollen Funktionsumfang dieser und weiterer Webseiten genießen zu können.